Затвори приварні
Купити замки приварні запірні в Києві
У нашій компанії ви можете купити затвор приварний в Києві за умови відповідності обладнання всім встановленим нормам ГОСТ. Виходячи з назви, можна відзначити, що установка даного виду затворів здійснюється методом приварки, що дозволяє досягти наступних переваг:
-
Високий рівень герметичності;
-
Надійність при використанні.
Відповідно, приварні дискові затвори використовуються при підвищених вимогах до трубопровідної системи та арматурі. Обертання диска усередині конструкції здійснюється завдяки механічному вентиля або електричного приводу, який суттєво спрощує процес експлуатації.
Таблиця розмірів заслінки поворотної дискової сталевий PN16
| DN | L | ø1 | ø2 | H1 | H2 | h | Вага (кг) |
| (мм) | PN16 | ||||||
| 80 | 114 | 91 | 91 | 100 | 238 | 40 | 10 |
| 100 | 127 | 117 | 100 | 115 | 238 | 40 | 13 |
| 125 | 140 | 144 | 125 | 120 | 275 | 50 | 19.5 |
| 150 | 210 | 172 | 150 | 130 | 295 | 45 | 31 |
| 200 | 230 | 219 | 200 | 179 | 335 | 61 | 39.75 |
| 250 | 250 | 273 | 250 | 215 | 390 | 63 | 53.15 |
| 300 | 270 | 320 | 300 | 236 | 425 | 70 | 77.05 |
| 350 | 290 | 362 | 350 | 268 | 475 | 70 | 106 |
| 400 | 310 | 413 | 395 | 310 | 517 | 75 | 157 |
| 450 | 330 | 464 | 445 | 338 | 553 | 73 | 209 |
| 500 | 350 | 516 | 495 | 372 | 582 | 72 | 241 |
| 600 | 390 | 616 | 595 | 434 | 671 | 80 | 337 |
| 700 | 430 | 721 | 695 | 494 | 741 | 90 | 410 |
| 800 | 470 | 818 | 797 | 555 | 822 | 100 | 620 |
| 900 | 510 | 926 | 900 | 638 | 940 | 125 | - |
| 1000 | 550 | 1022 | 997 | 695 | 1020 | 125 | - |
| 1200 | 630 | 1222 | 1196 | 800 | 1163 | 150 | - |
| 1400 | 710 | 1422 | 1396 | 910 | 1303 | 160 | - |

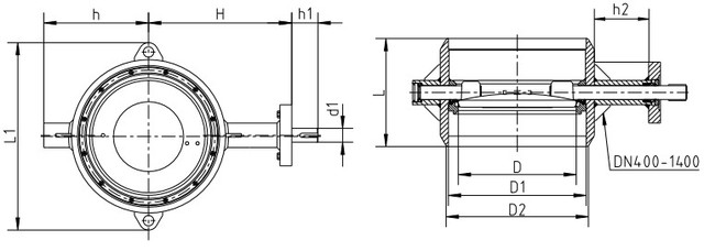
Особливості конструкції приварний затвора
Сталевий дисковий затвор включає в себе наступні конструктивні елементи:
-
Привід. У конструкції саме привод виконує роль керуючого елемента, тому може бути ручним або електричним.
-
Диск. Запірний орган конструкції, виготовляється з нержавіючої сталі, що забезпечує повний захист від корозійних процесів.
-
Штифт. Штифт дискового типу здійснює передачу зусилля на затвор від валу, який здійснює обертання.
-
Вал. Елемент здійснює обертання запірного органу, який забезпечує перекриття руху потоку робочого середовища.
Важливо відзначити, що вал проходить максимальну шліфування, що забезпечує мінімальний рівень тертя з втулкою.
Вартість приварних затворів в Україні
Відразу варто відзначити, що ціни на приварні затвори в Україні можуть змінюватись і залежать переважно від наступних пунктів:
-
Діаметр затвора;
-
Технічні характеристики;
-
Метод обертання диска;
-
Виробник.
Якщо ми розглянемо варіанти обертання диска, то варто розділити обладнання на такі види:
-
Затвори Батерфляй;
-
Приварний затвор з ексцентричним диском.
Вибір потрібного виду обладнання рекомендовано здійснювати разом з фахівцями в даній галузі, які допоможуть придбати якісне обладнання під визначені умови його використання. Звернувшись в компанію ТОВ Арматура ви можете придбати приварні затвори ДУ 100, 125, 150, 200, 250, 300, 350, 400. Широкий вибір діаметрів обладнання дозволяє підібрати оптимальний варіант під будь-які технічні вимоги.







